fr

Votre recherche

Exclusivité
Neuville-sur-Saône (69250)

100 m²

100 m² local commercial Neuville-sur-Saône avenue Burdeau stationnement

1 500 € / mois HT - HC*
Ref : LGLLNEU
Découvrir le bien

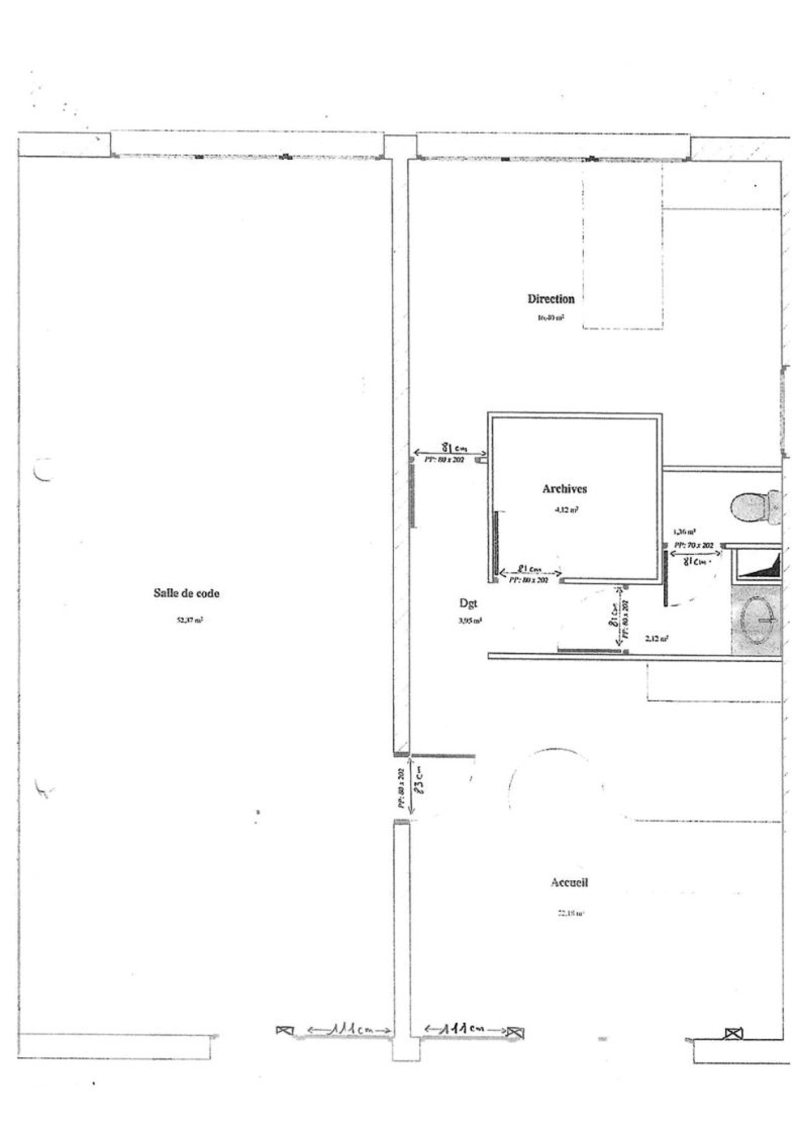
Au 13 avenue Burdeau à Neuville-sur-Saône, local commercial de 100 m² situé en rez-de-chaussée.

Le bien se compose de quatre espaces cloisonnés permettant une organisation distincte des activités, accueil, bureaux ou salles de travail selon les besoins.

Deux places de stationnement sont incluses avec le local.

Le chauffage est électrique.

Le local est disponible immédiatement.

Le loyer mensuel est fixé à 1 500 € HT hors charges.
Les charges mensuelles sont de 50 € HT.
La taxe foncière annuelle s’élève à 1 764 €.

Bail commercial 9 ans.
Dépôt de garantie : 3 000 € HT, correspondant à deux mois de loyer hors charges.
Indexation annuelle selon l’indice ILAT.
Honoraires preneur : 1 500 € HT, TVA 20 % en sus.

Situé à proximité du centre-ville de Neuville-sur-Saône.

Pour toute information ou pour organiser une visite, contactez HTL Immobilier.
Agence indépendante créée en 2007, nous accompagnons chaque projet avec sérieux, écoute et professionnalisme, sur Lyon et sa région.
Laurence Giordano - N° RSAC Villefranche-Tarare : 884 199 811
Agissant sous le statut d’indépendant.

TRAD_ZEPHYR_Caracteristique TRAD_ZEPHYR_Valeurs
Type de transac Local commercial
Code postal 69250
Superficie (m²) 100
TRAD_ZEPHYR_Caracteristique TRAD_ZEPHYR_Valeurs
Mode de chauffage Electrique
Type de chauffage Convecteur
Format de chauffage Individuel
TRAD_ZEPHYR_Caracteristique TRAD_ZEPHYR_Valeurs
Copropriété OUI
TRAD_ZEPHYR_Caracteristique TRAD_ZEPHYR_Valeurs
Loyer HT 1 500 € / mois
Honoraires HT charge locataire 1 500 €
Dont état des lieux Non renseigné
Dépot de garantie 3 000 €
Charges locatives HT (provision donnant lieu à régularisation annuelle) 50 €
Bail bail commercail
Echéance du bail 2024-07-01
Rez de chaussée
accueil

bureau

salle

salle

bureau

DPE GES
  • Commerces et santé
  • Loisirs
  • Ecoles
  • Transports
  • Pratique
Contacter pour ce bien
L'agence
Téléphone 06 11 80 73 37
Adresse
15 rue Louis Fort 69100 Villeurbanne

* Champ obligatoire

Les informations recueillies sur ce formulaire sont enregistrées dans un fichier informatisé par La Boite Immo agissant comme Sous-traitant du traitement pour la gestion de la clientèle/prospects de l'Agence / du Réseau qui reste Responsable du Traitement de vos Données personnelles. La base légale du traitement repose sur l'intérêt légitime de l'Agence / du Réseau. Elles sont conservées jusqu'à demande de suppression et sont destinées à l'Agence / au Réseau. Conformément à la loi « informatique et libertés », vous disposez des droits d’accès, de rectification, d’effacement, d’opposition, de limitation et de portabilité de vos données. Vous pouvez retirer votre consentement à tout moment en contactant directement l’Agence / Le Réseau. Consultez le site https://cnil.fr/fr pour plus d’informations sur vos droits. Si vous estimez, après avoir contacté l'Agence / le Réseau, que vos droits « Informatique et Libertés » ne sont pas respectés, vous pouvez adresser une réclamation à la CNIL. Nous vous informons de l’existence de la liste d'opposition au démarchage téléphonique « Bloctel », sur laquelle vous pouvez vous inscrire ici : https://www.bloctel.gouv.fr Dans le cadre de la protection des Données personnelles, nous vous invitons à ne pas inscrire de Données sensibles dans le champ de saisie libre.
Ce site est protégé par reCAPTCHA, les Politiques de Confidentialité et les Conditions d'Utilisation de Google s'appliquent.

Découvrir nos outils